Novojunta® Pro Basic
Descripción
Novojunta® Pro Basic es un sistema de perfiles para colocación en juntas de dilatación de hasta 40 mm de ancho. Consiste en perfiles de aluminio perforados en su base para recibir las fijaciones y un inserto de caucho EPDM que admite movimientos multidireccionales.
Esta gama de producto es altamente funcional, pudiendo combinarse tanto los perfiles como los cauchos. Así, si necesitamos instalarla por ejemplo en soleras de distinta altura, podríamos adquirir las piezas acorde a nuestras necesidades. El EPDM resiste intemperie, variaciones térmicas, desgaste y humedad.
Los acabados lisos son la opción más propicia para lugares con altos requerimientos de higiene como pueden ser hospitales.
Disponible en color negro o gris con acabado liso o estriado.
Descargas
Enlaces
Imágenes
VIDEO
Especificaciones
Novojunta® Pro Basic
Novojunta® Pro BasicP
Movimiento:
- Ancho 20: 8 mm. (+/-4 mm) GOMA LISA // 10 mm (+/5 mm) GOMA ESTRIADA
- Ancho 30: 10 mm. (+/-5 mm) GOMA LISA // 12 mm (+/6 mm) GOMA ESTRIADA
- Ancho 40: 12 mm. (+/-6 mm) GOMA LISA // 14 mm (+/7 mm) GOMA ESTRIADA
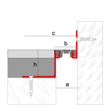
| Material | Referencia | a | b | c | h | Longitud |
| Aluminio +EPDM | NJPB2012* | 20 mm | 24 mm | 104 mm | 12,5 mm | 2,5 / 3 m** |
| NJPB2022* | 104 mm | 22 mm | ||||
| NJPB2040* | 120 mm | 40 mm | ||||
| NJPB2050* | 160 mm | 50 mm | ||||
| NJPB2080* | 130 mm | 80 mm | ||||
| NJPB3012* | 30 mm | 34 mm | 114 mm | 12,5 mm | ||
| NJPB3022* | 114 mm | 22 mm | ||||
| NJPB3040* | 130 mm | 40 mm | ||||
| NJPB3050* | 170 mm | 50 mm | ||||
| NJPB3080* | 140 mm | 80 mm | ||||
| NJPB4012* | 40 mm | 44 mm | 124 mm | 12,5 mm | ||
| NJPB4022* | 124 mm | 22 mm | ||||
| NJPB4040* | 140 mm | 40 mm | ||||
| NJPB4050* | 180 mm | 50 mm | ||||
| NJPB4080* | 150 mm | 80 mm |
*A elegir goma lisa o estriada y colores negro o gris
**Según disponibilidad
